
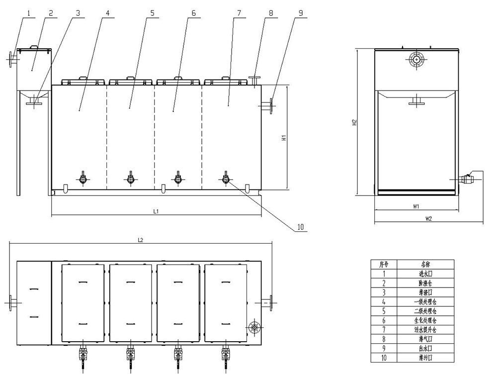
● 設備設計圖:

● 功能說明:
①利用電化學方式為分解漂浮油、膠化油、凝結油、硬化油、懸浮油、乳化油等,無任何化學制劑添加,不產生二次污染。
②油脂被分解成親水性分子,隨水流出,無需清掏,避免傳統隔油器的臟污、堵塞、冒水等現象;后期維保工作簡便,環境干凈衛生。
③有助于改善各項水質指標,以達到環保排放標準。
④分解速度快,效率高,油污去除率可達 95% 以上,相對于傳統設備,耗電量小,運行成本低廉。
⑤設備除臭功能明顯,改善環境、排出有毒有害氣體產生的安全隱患。
●設備技術參數
注:網站上所以產品的參數僅供參考如果更改恕不另行通知
